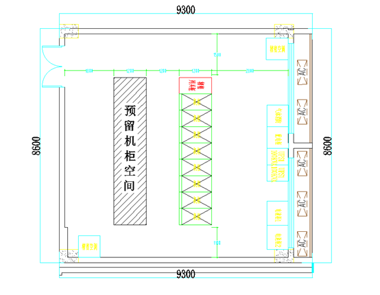
本项目在高中部教学楼 1#及初中部 15#楼,其中高中部采用微模块的建设模式,预计高中部机房面积约 142.3m2,预计可以部署两组 16 个设备机柜(含精密列头柜)微模块冷通,本期建设一组,另一组为扩建预留、初中部机房采用常规方式建设,面积约 80m2,预计最大 16 个设备机柜,本期建设按实际需求部署 8 个设备机柜。

机房平面布局示意图

两个机房均包含包括机房 UPS、配电、精密空调、机柜、机房环境监测设备及网络设备管理系统、机房安防监控设备及系统等的建设,适应核心机房联网监控的要求,实现机房环境、安防、动力、门禁、报警信息的综合远程联网监控,适应电信机房无人值守和联网监控的要求。

校园中心机房建设项目概述(通用文案)
机房局部示意图

依据 GB50174-2017《电子信息系统机房设计规范》对机房分级的要求,设计时应根据机房的使用性质、管理要求及其在经济和社会中的重要性确定所属级别。电子信息系统机房划分为 A、B、C 三种级别。机房具体按照哪个等级标准进行建设,应根据数据丢失或网络中断在经济或社会上造成的损失或影响程度确定,同时还应综合考虑建设投资。等级高的机房可靠性提高,但投资也相应增加。综合考虑建设投资和数据丢失或网络中断造成影响的重要程度以及今后可持续发展的业务需求,本次数据中心机房规划参照国标《电子信息系统机房设计规范 GB50174-2017》B 级机房建设标准设计、建设。

考虑到现今数据机房运行成本居高不下的问题,建议采用效率高、带载率高、高可靠性的微模块 UPS。制冷系统(高中部机房)采用冷通道封闭系统加上行间空调的高效节能解决方案。传统空调房间级制冷空调需要考虑到机房热辐射、照明热源、新风制冷等因素增加空调制冷量,从而增加了投资成本,增加了能耗的问题;而行间制冷加冷通道封闭机房制冷,把冷空气集中控制到 IT 负载前端,就近直接为 IT 设备降温,大大提高空调的制冷效率,减少了能耗。

本次机房建设的内容主要包括:

  • 机房装修工程——机房室内装修包括:天花吊顶、墙面装修、防静电地板、门窗等;
  • 供配电及 UPS 系统——供配电系统、UPS 系统的建设;
  • 机房照明系统——机房照明系统解决机房内场地的亮度使用问题;
  • 安防子系统——机房安防子系统解决机房内场地的安防、门禁、报警信息等使用问题;
  • 精密空调及新风系统——解决机房内恒温恒湿、空气净化问题;
  • 结构化布线工程——机房内的弱电布线工程;
  • 防雷接地工程——防雷接地工程包括:电源二、三级防雷系统,计算器工作直流地、安全保护接地、交流工作地、屏蔽与防静电接地;
  • 机房场地环境监控系统——解决机房的安全问题;
  • 机房内部管理系统——解决机房整体管理问题;

本系列智慧校园建设方案分享了一个中大型普通中学智慧校园的真实案例,该项目公开招标中选的价格逾三千六百万元,项目内容繁多请点击目录中的链接查看相关章节。另外本站在分享时为方便阅读删减、重构了部分内容,原始方案见系列第一篇文章分享的附件。

XX 高新区中学智慧校园整体建设方案.docx

目 录
第一章 项目概述 1
1.1 建设内容 1
1.2 建设思路 1

第二章 建设背景 5
2.1 项目背景 5
2.2 项目依据 6
2.3 信息化现状 9
第三章 需求分析 11
3.1 政务目标分析 11
3.2 业务功能分析 12
3.3 用户角色分析 13
3.4 安全需求分析 14
3.4.1 业务保障安全需求 14
3.4.2 信息安全合规性需求 15
第四章 建设目标 18
4.1 稳步提高学校信息化办学水平,促进办学质量提升 18
4.2 探索信息技术环境下的教育教学新模式、新方法 18
4.3 为学校日常教学、教务管理工作提供高效智能管理服务支撑 18
4.4 打造便捷、高效、丰富的校园信息化服务和宣传的渠道 19
第五章 建设内容 20
5.1 建设范围 20
5.2 标准规范 20
5.2.1 行业标准规范 20
5.2.2 技术标准规范 21
5.3 总体设计 22
5.3.1 设计思路 22
5.3.2 设计原则 27
5.3.3 架构设计 29
5.3.4 技术路线 33
第六章 技术方案 44
6.1 校园数据管理平台 44
6.1.1 数据基础管理 44
6.1.2 数据资源管理 45
6.1.3 数据服务应用 47
6.2 应用支撑服务平台 48
6.2.1 基础信息管理 48
6.2.2 接入规范管理 50
6.2.3 开放应用中心 57
6.2.4 统一认证平台 57
6.2.5 视图开发平台 59
6.2.6 可视化分析平台 60
6.2.7 地理信息系统 62
6.2.8 消息支撑平台 63
6.2.9 快速开发框架 64
6.3 “教学考评管”应用 68
6.3.1 智慧教学:智慧授课系统作业管理系统翻转课堂系统教育资源系统出题组卷系统错题管理系统科研管理系统
6.3.2 智慧学习英语听说教学习系统
6.3.3 智慧考试:网上阅卷系统质量分析系统英语听说模考系统
6.3.4 智慧评价 132
6.3.5 智慧管理:选排课系统校园 OA 系统人事管理系统教务检查系统
6.4 云平台设施 179
6.4.1 数据机房:机房建设概述机房装修方案机房供配电及 UPS 系统机房新风系统机房安防系统机房动力环境监控系统机房防雷接地系统机房消防系统
6.4.2 云平台建设,指智慧校园硬件云平台基础设施,详见附件
6.5 网络设施 257
6.5.1 校园网络系统:校园网概述有线网系统无线网系统网络安全系统建设
6.5.2 IP 广播系统 303
6.5.3 综合布线系统 309
6.5.4 室外管道建设 316
6.6 终端设施 328
6.6.1 教室教学多媒体系统 328
6.6.2 精品录播系统 343
6.6.3 计算机教室云桌面系统 349
6.6.4 智能班牌 354
6.6.5 智慧图书馆管理系统 362
6.6.6 校园多功能厅信息化系统 369
6.6.7 会议室信息化系统 400
6.6.8 安全防范系统:视频监控系统校园一键紧急求助报警系统
6.6.9 标准考场/教室云录播及远程教研巡课系统 426
6.6.10 校园一卡通系统 463
6.6.11 校园电视台 476
6.6.12 校园信息发布 LED 高清显示屏系统 481
6.6.13 考场监控中心大屏系统 492
6.6.14 光明饭堂 497
第七章 制造工艺和质量保证措施 504
7.1 质量控制措施 504
7.1.1 质量控制制度 504
7.1.2 施工阶段的质量控制 506
7.2 质量保证措施 516
7.2.1 保证工程质量的技术措施 516
7.2.2 质量保证体系 516
7.2.3 施工质量保证措施 518
7.3 质量保证流程 520
第八章 交货及安装计划和保证措施 521
8.1 交货及安装计划 521
8.2 保证措施 521
第九章 培训服务方案 522
9.1 培训目的 522
9.2 培训服务流程 522
9.3 培训方式 522
9.4 授课人员安排 523
9.5 培训内容 523
9.6 培训方案表 524
9.7 培训效果评估 524
第十章 售后服务方案 526
10.1 技术支持与服务体系 526
10.1.1 技术支持与服务原则 526
10.1.2 技术支持与服务目标 526
10.1.3 良好的合作伙伴关系 527
10.1.4 服务监督管理机制 527
10.2 售后服务团队办公地点及成员数量 527
10.3 服务范围及服务时间 527
10.3.1 服务范围 527
10.3.2 质保期内的服务时间 528
10.3.3 质保期外的服务时间 528
10.3.4 技术支持与服务流程 528
10.4 系统应急方案 529
附件一:交货及安装计划 542

相关文章

  • 机房新风制冷系统建设方案,冷量计算及设备选型

    机房新风制冷系统建设方案,冷量计算及设备选型

    机房的新风制冷系统实际上一个容易忽略但是非常重要的机房子系统,若没在前期考虑充分,做好新风制冷系统的话,后期改扩建会非常麻烦,笔者本人就曾遇到过类似难题。 1. 机房空调系统 根据规划布置高中部机房主要为微模块冷通道、机房大空间区域及配电室 3 部分供冷需求;初中部机房主要机房大空间区域供冷需求。两个数据机房均需建设一套新风系统,要求建设过程中符合相关安全要求。 要求数据机房空调系统能够实现主备功能,即主空调因特殊原因宕机后,备用空调能够自动接管工作,确保机房内温度正常设备能够正常运行,无需人工…

  • 智慧图书馆管理系统建设方案(通用文案)

    智慧图书馆管理系统建设方案(通用文案)

    近几年,政府工作报告中对阅读问题的持续关注,使阅读成为全社会关注的一个热点。提供更多优秀文艺作品,倡导全民阅读,建设书香社会,把阅读作为一种生活方式,把它与工作方式相结合,不仅会增加发展的创新力量,而且会增强社会的道德力量 “立足于课内,辐射于课外”指导学生开展课外阅读是延伸课堂教学、增长学生知识、提升审美情趣、提高学生素质的有效途径。课内阅读和课外阅读能够相互促进,课外阅读扩大了学生的知识面,书读的越多,懂得知识就越多,越能促进课内阅读,从而使学习越来越轻松。并且丰富了孩子们的精神世界,对学生…

  • 英语听说教学系统是什么?有哪些功能

    英语听说教学系统是什么?有哪些功能

    英语听说教学系统是在课堂和机房使用的英语听说互动教学产品,教师可以在课堂教室进行多媒体教学,也可以在机房进行听说练习,让学生完成课堂活动。课后学生可以自主学习或者完成教师布置的作业,所有的练习形成一个教学评价反馈到教师,让教师了解学生的听说水平,从而更好地促进课堂教学。这就形成了一个良性的闭环。 教师使用英语听说智能教学系统还可以进行教学管理、班级管理、作业管理和练习讲解。教师使用账号登录系统,可以建立练习任务并下发给学生。对于建立的任务在结束练习之后可以查看整体的练习情况和参与练习的每个学生的…

  • 中小型数据中心机房建设方案中的综合布线系统(简易描述)

    中小型数据中心机房建设方案中的综合布线系统(简易描述)

    综合布线系统遵照 ISO/IEC 11801 及EIA/TIA 568A/B 国际标准,数据使用光纤与 6类布线系统,采用列头柜布线方式。强电线路走下桥架,弱电线路走上网络桥架。 1. 数据水平子系统 水平子系统采用符合 EIA/TIA568-B2 等最新国际标准批准的 6类 UTP 铜缆指标值,6 类水平线缆要求必须具有分割器以保证线缆供给整个系统的性能;6 类水平线缆还要求具有 CMR 防火等级,以保证系统具有一定的防火能力;铜缆信息点为全 6类配置,具有较高的性能价格比,既考虑到经济性又兼…

  • 校园协同办公系统,智慧校园中的 OA 系统功能介绍

    校园协同办公系统,智慧校园中的 OA 系统功能介绍

    智慧校园中的协同办公 OA 针对目前区域、学校教育机构行政办公管理存在的问题,提供一款高效、便捷的日常办公产品,为各级教育机构创建一种协同工作的环境,全面提高工作效率和质量,实现规范化的流程管理,增强协同工作的能力。 1. 智慧考勤 包括上下班登记、外出登记、请假登记、出差登记、个人考勤查询等内容。上下班登记相当于网上签到,既方便又防止作假。在个人办公中的“今日外出人员”可以方便用户查询当日员工外出情况。功能特点: 2. 校园通讯录 包括通讯录、个人通讯录和公共通讯录三种类型。用户可以创建属于自…

  • 数据中心机房建设方案:综合布线工程

    数据中心机房建设方案:综合布线工程

    本数据中心机房建设方案内容较多,包含了一般机房建设项目中的装修方案、供配电系统、动环监控系统、防雷系统、机柜系统、制冷系统等。本页内容是机房建设中的综合布线部分,本系列文章: 本机房综合布线工程建设的总体目标是:建立一套先进、完善的机房综合布线系统,为机房管理各种应用,包括数据、语音、图像、控制等应用系统提供接入方式、配线方案,实现系统配置灵活、易于管理、易于维护、易于扩充的目的。 1. 综合布线设计依据 2. 综合布线设计原则 机房工程体现出系统功能设置合理、技术成熟、适度超前、集成度高、性价…

- 联 系 我 们 -

+86 186-2315-0440

在线咨询:点击这里给我发消息

电子邮箱:i@zzptech.com

工作时间:9:00~18:30,工作日

微信客服