分享一套本地区某职业中心扩改建项目的弱电智能化图纸。项目总建筑面积约 19,372.12 平方米,图纸涵盖宿舍楼、教学楼和泅渡馆等区域,涉及安防系统、多媒体系统、智能化系统及会议系统等内容。
该图纸文件(DWG 格式)包括设计说明、设备清单、平面图和系统图,共计 44 张。整体设计虽然不复杂,但完成度较高,值得参考借鉴。以下为图纸中的设计说明部分。
1. 某职业院校弱电智能化设计规范
- 相关专业提供的工程设计资料;
- 甲方对设计方案文件的批复和意见;
- 甲方提供的设计任务书及设计要求;
- 三峡发展函【2023】59 号函对完善建设基地智能化要求;
- 中华人民共和国现行主要标准及法规:
- 《智能建筑设计标准》 GB/T 50314-2015
- 《民用建筑电气设计标准》 GB51348-2019
- 《综合布线系统工程设计规范》 GB50311-2016
- 《数据中心设计规范》 GB 50174-2017
- 《安全防范工程技术规范》 GB 50348-2018
- 《安全防范工程通用规范》 GB 55029-2022
- 《视频安防监控系统工程设计规范》 GB 50395-2019
- 《民用闭路监视电视系统工程技术规范》 GB 50198-2011
- 《视频安防监控系统技术要求》 GAT 367-2016
- 《入侵报警系统工程设计规范》 GB 50394-2019
- 《出入口控制系统工程设计规范》 GB 50396-2007
- 《有线电视网络工程设计标准》 GB/T50200-2018
- 《视频显示系统工程技术规范》 GB 50464-2008
- 《厅堂扩声系统设计规范》 GB 50371-2006
- 《公共广播系统工程技术标准》GB/T 50526-2021
- 《建筑物防雷设计规范》 GB50057-2019
- 《建筑物电子信息系统防雷技术规范》 GB 50343-2012
- 《火灾自动报警系统设计规范》GB50116-2013
- 《建筑抗震设计规范》GB50011-2010
- 《建筑机电工程抗震设计规范》GB50981-2014
- 《建筑电气与智能化通用规范》GB 55024-2022
- 《教育建筑电气设计规范》JGJ310-2013
- 《宿舍、旅馆建筑项目规范》GB 55025-2022
- 《建筑物移动通信基础设施工程技术标准》GB 51456-2023。
- 其它有关国家及地方的现行规程、规范及标准;
- 其它各专业提供的设计资料。
2. 某职业院校弱电智能化设计范围
(1)基地整体智能化设计包括以下智能化系统:
- 综合布线系统(语音、数据)
- 计算机网络系统(数据网、智能网)
- 有线电视系统
- 网络安全系统
- 宿舍智能门锁系统
- 紧急大喇叭广播系统
- 安全防范系统(视频监控、入侵报警、出入口控制、电子巡查、停车场管理)
- 会议及录播系统
- 大屏系统
- 发言扩音系统
- 机房工程(精密空调、防雷接地、机柜、超融合服务器、配电及 UPS 系统)
- 智慧校园管理系统

基地整体智能化系统包括基地新、老校区智慧校园建设的所有智能化系统功能,包括前期已招标部分优化和功能增加部分,本次设计为新校区已招标部分及优化建设计:综合布线系统、计算机网络系统、有线电视系统、紧急大喇叭广播系统、视频监控、入侵报警、出入口控制、停车管理系统、多功能厅会议及录播系统、发言扩音系统、中型会议室的液晶 LCD 屏接屏系统,其他智能化系统,以及老校区的建设在后期建设不在本次体现。
(2)与其它专业设计的配合:
- 消除小区公共区域建筑物对移动通信信号的屏蔽效应,实现公共区域及房间内的网络覆盖,保障居住人员与外界通信质量、提供稳定优质服务,办项目运营商接入为移动、电信、联通等、移动信号支持 3G 以上信号覆盖;覆盖范围包括校区公共区域、住宿房间内、停车场、教学楼、电梯和楼梯间;详细移动通讯信号覆盖系统由移动运营商负责设计、安装。
- 会议装修应与智能化系统配合实施。
(3)本工程电信分界点为弱电进线间电信总配线架处;电话交换系统、接入网等通信设施由电信部门负责。
3. 某职业院校弱电智能化设计原则
- 可靠性:各子系统应具备在规定条件和规定时间内完成规定功能的能力、具备长期稳定工作的能力。
- 实用性:各子系统设计应满足本工程适用的有关规范要求。各子系统必须经济实用、操作简单,能够达到节约能源、延长设备使用寿命、方便物业管理的目的。
- 先进性:各子系统应在满足可靠性和实用性的前提下,具备一定的先进性、前瞻性,符合计算机和网络通信技术最新发展潮流。系统必须采用目前国际国内领先技术,保证在 5~10 年内技术不落后。
- 开放性:各子系统应遵循开放性原则,提供符合国际标准的软件、硬件、通信、网络、操作平台和数据库管理等方面的接口与工具,使系统具备良好的灵活性、兼容性、扩展性和可移植性。
- 经济性:设计方案及产品选型应在满足需求和未来发展趋势的前提下,尽量作到经济、环保。
- 便利性:各子系统必须操作方便、简单易学,操作界面应为中文图形化界面。
- 可扩展性:设计应充分考虑各子系统的集成开发和信息共享的需要,尽量选用模块化结构,能够满足受控设备扩展的需要,对于现场控制器、网络和操作站也同样考虑在内,以利于日后的系统扩展与系统维护;应明确要求各子系统开放各自通讯协议,允许第三方通过智能化建筑集成系统(BMS)集成,实现信息和资源共享。
4. 某职业院校弱电综合布线系统
- 综合布线系统是将语音信号、数字信号的配线,经过统一的规范设计,综合在一套标准的配线系统上,此系统为开放式网络平台,方便用户在需要时,形成各自独立的子系统。综合布线系统可以实现资源共享。综合信息数据库管理、电子邮件、个人数据库、报表处理、财务管理、电话会议、电视会议等。语音通讯系统依靠市话局的远端模块虚拟接入,语音通讯系统的布线纳入综合布线系统。
- 由市政引来外线电缆,进入中心机房。本工程综合布线机房与计算机网络机房(弱电机房)合用,设置在宿舍楼一层,用来连接各楼层配线间的设备。
- 本工程综合布线系统由工作区子系统、水平布线子系统、楼层配线间子系统、垂直干线子系统、管理间子系统、建筑群子系统组成。
- 设计采用六类线解决方案、星型拓扑结构,支持各种形式的网络应用。
- 本工程在每层层设置弱电井,分别管理就近楼层数据点和语音点。配线架在竖井内(挂墙或 19”标准机柜)明装,竖井内竖向线槽应与平面图中水平线槽连接。楼层配线间若安装网络设备,应考虑环境条件,并根据网络的要求采用 UPS 电源集中供电。
- 本工程电话和网络采用非屏蔽综合布线系统,水平支线到桌面端口按照千兆布线标准设计,选用六类 4 对非屏蔽双绞线;网络垂直干线按照千兆布线标准,选择六类网线;语音垂直干线选择光纤传输。
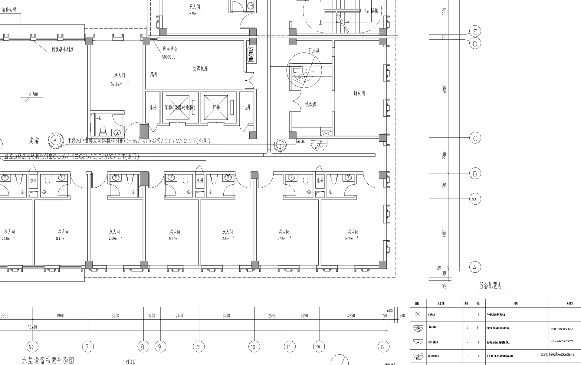
- 教学楼教学用房每间布设网络信息点 2 处(每处两组网线,分色布置),其他房间每间布置网络信息点 2 处(每处两组网线,分色布置);教学楼多功能房预留会议系统线路及高清显示屏、投影线路;学员宿舍一楼多功能房每间布设网络信息点 4 处,一楼其余房间布置网络信息点 2 处(每处两组网线,分色布置);学员宿舍参考酒店设计,布置门禁系统、电源系统、网络、电视及广播系统;学员宿舍 3 至 7 层 6~7 轴,C~D 轴区域,布置网络信息点 2 处(每处两组网线,分色布置)。语音和数据信息插座均采用 6 类非屏蔽模块,方便互换,会议室、 办公室 等处部分采用地面插座。
- 多媒体信息发布系统纳入数据网,根据需要在办公楼入口大厅、电梯前室、休息间等处设置多媒体信息发布点,供信息发布用。

5. 某职业院校计算机网络系统设计
- 本工程计算机网络系统设置外网、专网、数据网和智能网,四个网物理隔离。计算机网络中心设在宿舍大楼一层中心机房。
- 本工程数据网系统设计采用骨干千兆、桌面 100/1000M 自适应接入的二层结构网络体系。核心与接入交换机之间采用冗余链路的方式,核心交换机和存储交换机通过千兆单模光纤连接。核心交换机采用单核心交换机,同时保证提供足够数量的千兆端口用于连接骨干网(主交换机与楼层交换机之间的链路)和连接各类服务器。核心交换机要求有以下功能:集成 LAN/WAN/MAN,集成不同的网络、电信端口;提供智能 IP 服务,如提供对组播等协议的支持;提供对 IP 语音的支持;支持强大的网络管理功能。
- 核心交换机设置在宿舍楼一层中心机房,接入层交换机设置于每层的弱电配线间,接入交换机的数量按实际需要设置。
- 智能网采用骨干千兆、桌面 100/1000M 自适应接入的二层结构网络体系,主要提供安全防范系统(包括视频监控、出入口控制系统等)、广播系统、建筑设备监控系统等的网络接入。
- 无线网络:采用有线无线一体化解决方案来实现网络接入,借助 802.11N 技术实现无线上网。在园区、通道、车库、办公区、休息区设置无线接入点。无线 AP 点采用 POE 就近供电。
- 网络管理:从分区设计的角度看,本工程数据网设置网管中心区、数据中心区及业务接入区。系统应能满足日常办公访问 Internet 的需求;由于网络系统需要处理大量音视频文件,要求网络具备高可靠性、传输速率高等特点,系统应稳定、实用和安全,具有高宽带、大容量和高速率等特点,并具备将来扩容和带宽升级的条件。建设完成后的系统满足上网的运行要求,并且保证三到五年内技术不落后。无线管理系统作为基础网管平台的一个组件形式设置,采用能提供可视化图形界面的网管软件,对整个网络中网络产品的全部设备和端口进行监视和管理。
6. 某职业院校有线电视系统
- 有线电视采用运营商光缆接入,在宿舍楼楼层弱电间布置运营商三合一接入箱,三合一接入箱至房间内采用 2 芯皮线光缆,墙面插座采用 SC 耦合器安装 86 面板。
- 电视输出由运营商光猫 IPTV 输出;
- 本工程采用分配-分配传输网络,有线电视以光缆引入,通过光节点进行光电转换。 光站设置在中心机房。
7. 某职业院校弱电智能化网络安全系统
为保障校内局域网络安全采用以下措施全方位、深层次的构建一个坚固的安全网络,实现逻辑隔离和访问控制、保障数据传输的完整性和保密性,主要设备包括:下一代防火墙、WEB 应用防火墙、入侵检测系统、日志审计、运维安全网关(堡垒机)、内网安全风险管理与审计系统等。
- 下一代防火墙:下一代防火墙是面向应用层设计,能够精确识别用户、应用和内容,具备完整安全防护能力,能够全面替代传统防火墙,并具有强劲应用层处理能力的全新网络安全设备。
- WEB 应用防火墙:Web 应用防火墙对网站或者 APP 的业务流量进行恶意特征识别及防护,将正常、安全的流量回源到服务器。避免网站服务器被恶意入侵,保障业务的核心数据安全,解决因恶意攻击导致的服务器性能异常问题
- 入侵检测系统:主要是通过监控网络、系统的状态,行为以及系统的使用情况,对网络传输进行即时监视,在发现可疑传输时发出警报或者采取主动反应措施是一种积极主动的安全防护技术
- 日志审计:记录设备及服务器的各种操作,并提供日志报表系统分析,为进行事后的分析、取证提供证据。
- 运维安全网关(堡垒机):能够对运维人员维护过程进行全面跟踪、控制、记录、回放;支持细料度配置运维人员的访问权限,实时阻断违规、越权的访问行为,同时提供维护人员操作的全过程的记录与报告;系统支持对加密与图形协议进行审计,消除了传统审计中的审计盲点,是 IT 系统内部控制最有力的支撑平台。
- 内网安全风险管理与审计系统:以内网终端计算机为管理对象,通过“终端准入控制、终端安全控制、桌面合规管理、终端泄密控制和终端审计”五维化管理,全面提升内网安全防护能力和合规管理水平。
8. 某职业院校智能门锁系统
基地宿舍管理采用酒店管理方式进行宿舍门锁的管理,宿舍智能门锁采用 IC 卡智能门锁系统,IC 卡作为开锁钥匙,具有安全性高、变码方便、操作简单等特点
9. 某职业院校应急广播系统
- 本工程广播机房与监控室合用,公共广播与背景音乐共用一套音响装置。
- 本工程采用的是全数字广播系统,系统采用网络架构,无论各高音喇叭处于何种状态,均可强行播放公共广播。
- 系统主机应为标准的模块化配置,并提供标准接口及相关软件通信协议,以便系统集成。
- 系统采用 100V 定压输出方式。要求从功放设备的输出端至线路上最远的高音喇叭的线路衰耗不大于 1dB(1000Hz 时)。
- 广播区域划分满足火灾应急广播区域划分的前提下,满足建筑功能划分的需要。本工程共设置六个广播分区,每个分区单独组网并设音频前端及广播站, 整个大楼之间采用 TCP/IP 通讯协议,由综合布线系统预留信息点实现联网控制,每个分区音频终端在各楼栋顶楼配线间机柜内安装。
- 在环境噪声大于 60dB 场所设置的扬声器,在其播放范围内最远点的播放声压级保证高于背景噪声 15dB
- 火灾确认后,启动整个建筑的广播和消防系统声光报警器,并采取分时播放控制:先鸣警报 8~20S,间隔 2~3S 后播放紧急广播 10~30S,再间隔 2~3S 依次循环进行直至疏散结束。根据需要,可在疏散期间手动停止。
- 根据平面布置,基地高音喇叭安装为壁装式。主要分布在新区宿舍楼和教学楼以及老区的宿舍楼和教学楼楼顶,室外高音喇叭应选用防水型。
10. 某职业院校安全防范系统
10.1 校园安防系统总体说明
本工程在监控室设置一套独立的安全防范系统,在校区内形成全方位、全天候、集防盗、防抢、监控于一体的立体安全防范体系,包括视频监控系统、出入口控制系统、停车场管理系统等子系统。
10.2 闭路电视监控系统
- 安防监控室设在教学楼一层(指挥中心)。
- 本工程闭路电视监控系统采用网络构架,系统由前端 IP 摄像机、传输网络、存储系统、大屏显示及后端管理平台等组成,具有对图像信号的分配切换、存储、处理、还原等功能。
- 本工程前端摄像头主要分布在各出入口、过道、大厅、地下车库、电梯轿厢等场所,包括半球、枪机、一体化球式摄像机。走道内保安监视摄像机吸顶安装,电梯轿厢内保安监视摄像机吊顶内暗藏,一体化球式摄像机管吊安装。在入口大厅 、等场所采用带高清一体化摄像机。所有摄像机(电梯专用摄像机除外)均采用网络型摄像机,摄像机水平清晰度要求大于 1080P。其中半球摄像机吸顶安装,枪机和智能球机吸顶或壁挂、管吊安装。
- 视频信号使用全数字传输方式,采用六类线传输,通过智能网将信号传送制监控机房主机。控制信号采用局域网 IP 控制方式,传输路径与视频信号相同,沿弱电综合桥架或穿 PVC 管在吊顶、墙内敷设。
- 监控室设置在教学楼一层,采用 1 台视频服务器分作整个系统的控制主机,每路视频录像进行全天 24 小时录像,存储方式采用 IPSAN 存储、 扩展阵列,存储时间不少于 30 天。
- 系统可提供计划、本地手动和报警录像三种录像机制;支持多路视频同时回放;可随时在同一个视频窗口里对监控场景进行实时监控和录像回放切换;满足各种组合查询条件下(日期、时间、通道、楼层、区域等)的录像同步回放,录像导出为通用媒体文件。
- 在监控室设置一套液晶电视拼接墙,系统可以对视频输入进行编组,用以对各组不同视频的显示及操作进行组别显示。在查看实时画面过程中可以随意将任意一路视频调用到指定的视频窗或者显示器中显示。支持多路图像同时处理和显示。当有报警发生(如门禁、周界、防盗报警系统、摄像机被破坏等事件发生)时,相对应的网络摄像机图像会自动弹出到大屏幕上,由被动监控变主动监控。
- 系统实行控制权限分级管理,各操作员对其操作权限所对应范围内的设备进行操作和图像调用,视频监控系统的控制权限实行按区域分控管理,各分控中心的管理人员只可控制本区域或功能区的摄像机,而不可以控制和调用其他分控中心的信号。管理员具有最高管理权限,可管理、调度所有摄像机、所有录像。如有需要,通过开放的接口,可实现与公安等相关部门实现联动报警。
- 所有摄像机的电源,均由弱电井就近接入电源供给,后端机房设备电源由 UPS 供电接入。
10.3 出入口控制系统(门禁系统)
- 系统由主服务器、门禁控制器、电磁锁、门磁开关、读卡器、开门按钮等组成。本工程门禁控制器配置为网络型模式,直接通过以太网与门禁管理主机及各工作站进行联接。
- 系统由主服务器、操作员工作站和各分站上构成第一层管理层;由门禁控制器组成第二层硬件控制、信息储存、处理和传递层;由读卡器、出门按钮、电控锁、门磁感应开关和辅助探测器等组成第三层前端设备层。
- 本工程在校区的重要机房、资料室、档案室等处安装门磁开关、电控锁以及读卡机等装置,在校区大门设置 4 通道双向进出速通门。门禁设备可进行现场身份识别并由中央控制室监控。
- 系统具备高度安全性、严密性、稳定性和易兼容性、可扩充性,在系统中可以方便地扩展消费系统、考勤系统等。各门禁控制器间相互独立管理本控制器防区内前端门禁设备,并可通过门禁管理软件紧密联系,共同完成整个出入口控制系统内所有联动事件及全系统的防遣返等功能;出入口控制系统主机、工作站与门禁控制器之间的通信实行加密方式以保证其安全性。各安防区域门禁控制器设置在相应层弱电竖井内。
- 当火灾信号发出后,由消防报警系统提供干接点,自动打开安全疏散通道上的电子门锁,以方便人员疏散。
- 系统可结合巡查监察功能,与其他系统联网,实现相关设施的联动操作。
- 弱电间及由弱电间引出的线缆在弱电线槽内敷设,从线槽至控制器、读卡器、电控锁穿热镀锌钢管。门磁开关、电子门锁应注意与装修部门配合。
- 系统电源采用主机集中供电的方式,并配备 UPS 电源装置。
10.4 停车场管理系统
本工程在大门出口分别设置 1 套单进单出的车库管理设备,由物业对整个停车场进行统一的管理和收费。
- 在中心机房设置 1 套数据库服务器,系统采取集中管理模式,中央管理系统具有多出入口的联网与管理功能,所有数据分散采集,统一保存在管理中心的数据库服务器上。可在线监控整个停车场系统收支的记帐与报表、停车场系统的当前状况及历史记录、票卡数据库管理等。
- 采用基于以太网的中心联网管理,出入口与大楼中心机数据进行远程传送,数据共享。
- 财务经授权可以通过网络访问数据库服务器。
- 系统在停车场入口处设入口控制机、车辆探测线圈及电动道闸等,具有辨别卡号和自动出票功能,并设满位显示,图像捕捉,语音提示等功能。在停车场出口处设收费电脑、出口控制机、车辆探测线圈、电动道闸等,具有自动记费和收票功能,能进行图像对比、车辆确认。
- 系统应具备以下功能:出、入口影像鉴别;出、入口票据核实,自动区分月票、临时票据等;自动出票、自动计费、收费显示;出票机有中文、语音提示,自动打印收据;出入栅门自动控制;入口处设空车位数量显示、图像捕捉;图像对比、车辆确认;使用过期票据报警;非本停车场票据报警;物体堵塞验卡机入口报警;非法打开收款机钱箱报警;出票机内票据不足报警;
11. 某职业院校会议系统设计
会议系统主要针对多功能教室。系统以全数字、集中管理为原则进行设计。多功能教室是举行大、中型会议的场所,以会议为主。设计配备常规的数字会议功能。其会议系统主要包括:扩声系统、视频显示系统、会议发言扩音及摄像系统、智能中控系统、视频会议系统、录播系统。
- 扩声系统:专业音箱由左右、前中两对全频音箱组成,音频处理采用全数字音频处理设备,使整个会议室扩声音响系统声学特性不低于多功能类扩声系统声学特性 二 级标准。
- 视频显示系统:系统采用 P2.0LED 显示屏,能够将多种音频信号、视频信号通过混合矩阵切换到屏幕信息显示设备上,让所有代表观看公共会议信息及会议图像。
- 会议发言扩音及摄像系统:会场配备无线会议单元,通过会议系统主机进行智能管理。配置高清摄像机,分别拍摄全景以及特写图像。
- 会场配置视频会议终端,能够实现远程的视频会议。
- 会场配置录播服务器,能够实现会议的录播点播功能。
12. 某职业院校大屏显示系统
大屏系统主要针对各教室、中型会议室的显示屏系统。系统以高清、全数字、集中管理为原则进行设计。
针对教室和中行会议室分别设计不同的显示屏系统,包括液晶 LCD 拼接屏系统和智能黑板一体机系统。
- 液晶 LCD 拼接屏系统:设计在教学楼一楼中型会议室,各类计算机信号、视频信号在大屏幕上显示,形成一套功能完善、技术先进的信息显示管理控制系统。
- 智能黑板一体机系统:为满足培训教学需求,每个教室均设计有智能黑板一体机显示设备,但因各教室的面积、容纳人数以及教室长度不同以现场需求为依据各教室配置:教学楼二楼、三楼的四个大教室,因教室较长,设计的 110 寸智能黑板一体机、二楼小教室设计的 86 寸智能黑板一体机,因三楼大教室长度过长,在教室中后部设计了两台挂顶式 55 寸显示屏,以便教室后面的人员辅助观看教学内容。
13. 某职业院校发言扩生系统
大屏系统主要针对各教室、中型会议室的显示屏系统。系统以高清、全数字、集中管理为原则进行设计。
针对教室和中行会议室分别设计不同的显示屏系统,包括液晶 LCD 拼接屏系统和智能黑板一体机系统。
- 液晶 LCD 拼接屏系统:设计在教学楼一楼中型会议室,各类计算机信号、视频信号在大屏幕上显示,形成一套功能完善、技术先进的信息显示管理控制系统。
- 智能黑板一体机系统:为满足培训教学需求,每个教室均设计有智能黑板一体机显示设备,但因各教室的面积、容纳人数以及教室长度不同以现场需求为依据各教室配置:教学楼二楼、三楼的四个大教室,因教室较长,设计的 110 寸智能黑板一体机、二楼小教室设计的 86 寸智能黑板一体机,因三楼大教室长度过长,在教室中后部设计了两台挂顶式 55 寸显示屏,以便教室后面的人员辅助观看教学内容。
14. 某职业院校机房系统建设

(1)本工程的弱电机房主要包括弱电机房、安防监控室、进线间。其中弱电机房设置在宿舍楼一层,安防监控室设在教学楼一层(有直接对外出口)。
(2)本工程电子信息系统机房按计算机房 C 级标准设计,耐火等级为一级;建设应满足以下要求:
- 机房净高大于 2.6 米,架空防静电地板高度 450mm。
- 机房门采用钢质甲级防火门,向外开向疏散走道方向,门净空高度不小于 2.4m,门洞宽不小于 1.8m。
- 机房活荷载要求不小于 9KN/m²,UPS 电源室不小于 16KN/m²。
- 机房采用计算机专用恒温恒湿精密空调系统,要求环境温度为 18~28℃,均匀度偏差小于 4℃;湿度要求为 35%~75%,温度变化率应小于 5℃/h,应有防结露措施;机房空调设计详暖通专业设计图纸。
- 引入机房的交流电源须有可靠保证,由强电专业提供两路专用~380V 电源(TN-S 系统)引入,要求两路电源来自两段不同低压母线段。另设置 UPS 不间断电源作为备用电源,紧急情况下应保证机房 120 分钟供电时间。
(3)消防监控室合用,设在宿舍大楼一层。
- 本工程消防控制室设置于宿舍大楼一层,内配有火灾自动报警设备、视频监控主机、电视墙以及建筑设备监控系统主机、背景音乐和紧急广播系统主机等设备。
- 引入机房的交流电源须有可靠保证,由强电专业提供两路专用~380V 电源(TN-S 系统)引入,要求两路电源来自两段不同低压母线段。另设置 UPS 不间断电源作为备用电源,紧急情况下应保证系统满足安全防范各子系统供电时间要求。
15. 某职业院校弱电系统防雷与接地
- 本工程电子信息系统设备的雷电电磁脉冲防护等级按 C 级防护。
- 本工程所有从室外引入大楼内部的信息电缆均应加装 SPD 浪涌保护装置,计算机电源系统、有线电视系统、卫星接收天线、电信等弱电系统引入端,设过电压保护装置。
- 本工程智能化系统采用共接地系统,防雷接地与交流工作接地、直流工作接地、安全保护接地共用一组接地装置,其接地电组要求小于 1 欧姆。
- 本工程电子信息系统机房内所有设备的金属外壳、各类金属管道、金属线槽、建筑物金属结构等必须进行等电位联结并接地,等电位联结网格采用截面积不小于 25mm² 的铜带,并应在防静电地板下构成边长为 0.6m*0.6m 的矩形网格。
- 本工程在电子信息系统机房、安防监控机房、有线电视机房内设局部等电位接地端子板,并设置专用接地线引至接地体,接地线采用截面积不小于 35mm²的铜芯绝缘导线。
- 本工程弱电竖井采用-40×4 铜排作接地干线,弱电竖井各层均要求设置局部等电位接地端子箱。
- 本工程机房内交流供电电源箱采用 TN-S 系统;在低压配电屏设置一级电源防雷的基础上,在机房配电柜总进线处加设二级防雷装置,在设备终端处采用带浪涌保护功能的电源插座为设备提供电源。另外,对进入建筑物的所有信号线路应加装信号避雷器,以便保护与通信网络、数据网络和计算机网络相联的设备。
16. 某职业院校弱电系统抗震设计要求
(1)设计依据
- 依据《建筑抗震设计规范》GB50011-2010,3.7.1(强条)非结构构件,包括建筑非结构构件和建筑附属机电设备,自身与结构主体的连接应进行抗震设计。
- 依据《建筑机电工程抗震设计规范》GB50981-2014,1.0.4(强条)抗震设防烈度为 6 度及 6 度以上地区的建筑机电工程必须进行抗震设计,本工程抗震烈度为 6 度。
(2)网络机柜、供电配电箱(柜)、通信设备的安装按下列规定实施:
- 网络机柜、供电配电箱(柜)、通信设备的安装螺栓或焊接强度满足抗震要求。
- 靠墙安装的网络机柜、供电配电柜、通信设备机柜底部安装应牢固。当底部安装螺栓或焊接强度不够时,应将顶部与墙壁进行连接。
- 当网络机柜、供电配电柜、通信设备柜等非靠墙落地安装时,根部应采用金属膨胀螺栓或焊接的固定方式。
- 壁装的网络机柜、供电配电箱与墙壁之间应采用金属膨胀螺栓连接。
- 网络机柜、供电配电箱(柜)、通信设备机柜内的元器件应考虑与支承结构间的相互作用,元器件之间采用软连接,接线处做防震处理。
- 网络机柜、供电配电箱(柜)面上的仪表应与柜体组装牢固。
(3)安装在吊顶上设备,应考虑地震时吊顶与楼板的相对位移。
(4)配电导体应符合下列规定:在弱电桥架、线缆槽盒内敷设的线缆在引进、引出和转弯处,应在长度上留有余量;接地线应采取防止地震时被切断的措施。
(5)电气管路敷设时应符合下列规定:
- 内径不小于 60mm 的电气配管及重力不小于 150N/m 的电缆梯架、电缆槽盒、母线槽均作进行抗震设防。
- 当电气线路敷设采用金属导管、刚性塑料导管、电缆梯架或电缆槽盒敷设时,应采用刚性托架或支架固定,不宜使用吊架,当必须使用吊架时,应安装横向防晃吊架。
- 当金属导管、刚性塑料导管、电缆梯架或电缆槽盒穿越防火分区时,其缝隙应采用柔性防火封堵材料封堵,并应在贯穿部位附近设置抗震支撑。
- 金属导管、刚性塑料导管的直线段部分每隔 30m 应设置伸缩节。
(6)垂直电梯宜具有地震探测功能,地震时电梯应能够自动就近平层并停运。
(7)设置在建筑物屋顶上的共用天线应采用防止因地震导致设备或其部件损坏后坠落伤人的安全防护措施。
(8)按设计任务书要求,建筑工程机电抗震设计为建设方另请专业单位专项设计,不在本次设计范围内。专项设计应满足《建筑抗震设计规范》GB50011-2010 和《建筑机电工程抗震设计规范》GB50981-2014 规范要求。
17. 某职业院校智慧校园管理平台建设
(1)数据底座:
- 数据中台:包含数据标准搭建、ETL 及数据转换、数据资产管理、数据服务、数据质量等建设、数据可视化系统(BI)。
- 服务中台:包含统一应用中心、统一用户中心、统一认证中心、统一插件中心、统一服务中心、统一日志中心、统一消息中心 、部署运维建设。
(2)管理平台:
- 融合门户:包含前端自适应、访客系统、服务发布、服务开发、服务评价、日程聚合、消息聚合、内容聚合、文件聚合、搜索服务、三张清单、效能监督建设。
- 数据对接:设计训练系统、体能训练系统、校园网络及服务、安防消防系统、明厨亮灶、门禁系统、智能门锁系统、监控摄像系统等硬件系统数据对接。
- 教务系统:学员管理、课程管理、教师管理、班级管理、选课管理、考试管理、成绩管理、请假管理、课表管理、培训记录管理、资源管理、考勤管理、系统设置、数据统计与报表、网上教学、通知公告、班级交流与讨论、考核管理、工作追踪、教学计划管理、学员档案管理、学习资源管理、教材管理、学员评价与反馈、学习进度追踪、教学质量评估、学员奖励与惩罚管理、学员健康管理、学员证书与荣誉管理、学员宿舍管理、课程评价与改进、学员信息统计与分析、培训资源调度与管理。
- 学工系统:考试管理、成绩管理、请假管理、课表管理、学籍管理、资源管理、考勤管理、学员评价与反馈、学习进度追踪、教学质量评估、学员健康管理、学员证书与荣誉管理、学员宿舍管理、课程评价与改进、学员信息统计与分析、培训资源调度与管理。
- 移动平台:企业微信日常管理、身份安全场景、自动化场景、访客场景、服务人员场景、招生服务场景、校友服务场景、体育运动场景、信息发布场景、企业微信视觉标准化、成绩查询、课表查询、工资条、一卡通查询、网络报修、失物招领、电子通行证、疫情监控。
- 办公平台:车辆管理、用章管理、会议管理、资产管理(资产领用、调拨、归还、折旧、报废全过程管理、资产报表统计、资产条码打印等)。
- 人事系统:教职工信息库、教职工信息修改与审核、教职工信息查询、岗位/职务管理、校内调动、教职工考勤管理、档案管理、离退休管理、离校管理、离世管理、在职进修、出国管理、奖励与考核、薪酬福利管理、社保管理。
(3)教学平台:
- 在线教学平台:包含教学门户、课程建设、在线教学、课堂教学、教学评价、空间服务(管理空间、教师空间、学员空间)、数据服务等。
- 资源库平台:资源呈现、资源上传、资源分类、资源分享、资源管理等。
- 教学终端:资源应用、超级白板、教学工具、互动工具、网盘服务等。
