展开文章目录
这几天做一个水文、气象的监测方案,要求详尽描述施工过程,其中就包括监控杆的安装、选型等等。我是这么写的:根据监控点部位及现场气象条件选择监控前端安装方式。立杆或者铁塔的设计及安装,应采取防止前端设备在不利工况下的抖动的措施,要求坚固、稳定。监控前端安装立杆焊接应符合 GB 50205 的要求。
- 机械强度应满足抗风等级≥8 级,抗震、摆动幅度不超过 15mm。
- 设计风阻:应不低于 35m/s。
- 防洪标准为 20 年一遇及以上。
考虑到本项目中渡口较多,且各个渡口地理位置情况均不相同,因此将会采取不同的部署方式。故本节之样图仅为水文气象站的安装示意图,待最终方案审定后可出具准确的安装施工图。
下页上两图是典型的水文监测站安装实例,可见其雷达水位计是按 4.1 安装规范垂直于水面,尽可能地深入渠道中央部署。下排左侧为该杆件大样图,该型立杆和常规监控立杆的主要区别在于支臂较长,也因此在基坑开挖地垄预埋时要比常规型号立杆做的更深更稳固。
具体到本项目,考虑到渠江丰水期和枯水期水位变化大、河流断面变化大,若要准确测量水位和流速,将用到 10*10M 甚至更高更长的立杆。可参考的立杆参数有:
- 10-6L 杆:立柱:八棱外径 D280-220*6*10000,横臂:200-110*5*6000,下法兰:600*20,螺杆 8-M27*1300(600*5)
- 10-10L 杆:立柱:八棱外径 D280-220*8*10000,横臂:220-110*6*10000,下法兰: 600*20,螺杆 8-M27*1400(600*5)
- 10-12L 杆:立柱:八棱外径 D280-220*8*10000,横臂:220-110*6+5*12000,下法兰:600*20,螺杆 8-M27*1400(600*5)
参数有了可一直么有找到合适的立杆大样图,和同行们一交流得到了本文……投几个币支持一下吧,谢谢。
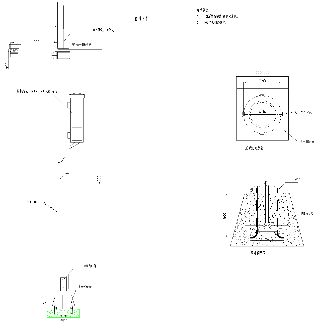
4M 直通立杆大样图

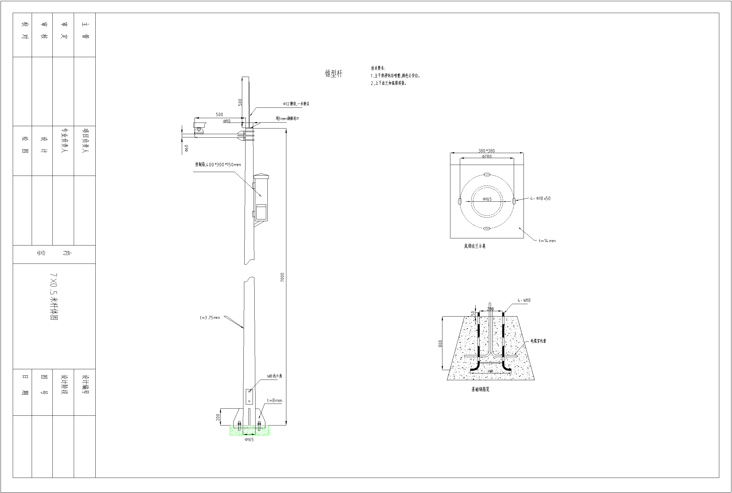
3M~7M 圆锥形立杆大样图

3M~6M 圆形大小立杆大样图

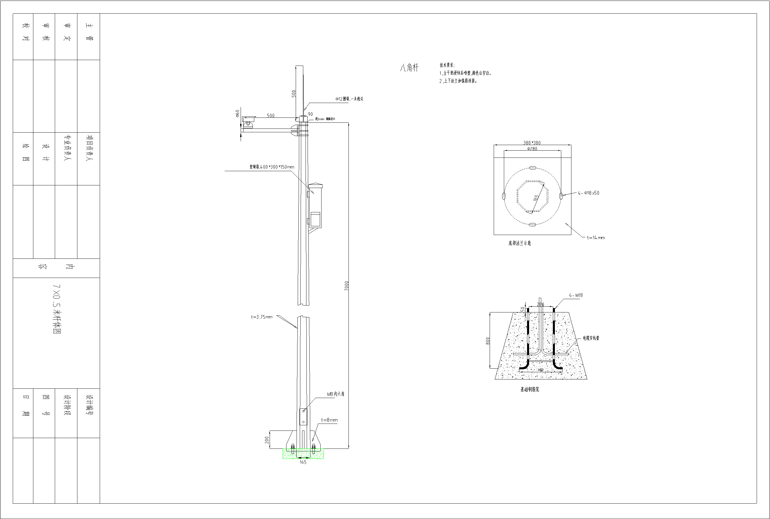
3M~7M 八角立杆大样图

12M~15M 超高型立杆大样图

